新築4LDK!今福町第1 1号棟【足利市不動産情報】

こんにちは!
足利市の不動産会社、株式会社エステート・ワンのワンちゃんです♪

今回は今福町の新築戸建てを紹介します!
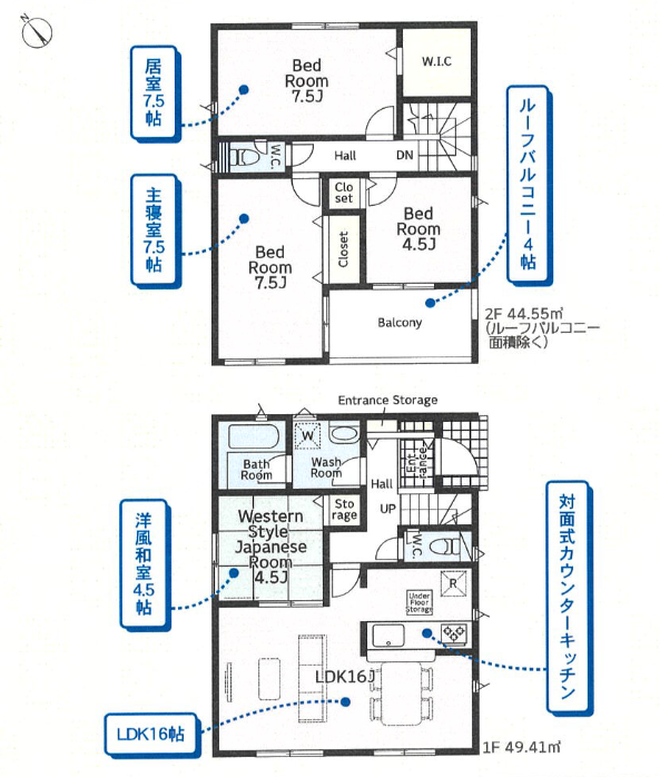
4LDKタイプ☆
主寝室にはウォークインクローゼット(WIC)付きで、衣類や季節物の収納もスッキリ!
さらに、テレワークルームも完備しており、在宅ワークやお子さまの学習スペースとしても活用できます♪
小学校まで徒歩13分♪
- 足利市立三重小学校・・・・・・・・・・・・・・・徒歩約13分
- 足利公園・・・・・・・・・・・・・・・徒歩約16分
- セブンイレブン足利五十部店・・・・・・・・・・・・・・徒歩約15分
子育て世帯にも嬉しい立地(^_^)/
新しい生活をこの今福町でスタートしてみませんか?
見学の予約、ご相談受付中です!
気軽にお問い合わせください♪
住まい探し相談会開催中!

住まいのことがなんでも話せる相談会を企画しました!
・いつが買い時なんだろう
・ローンが通るかなぁ
・諸経費ってどれくらいかかるんだろう
・いい物件が見つからない などなど
住宅は安い買い物ではありませんし、
ネットで物件探しをしていてもいまいちピンと来なかったりしますよね・・・
そんな時は取引経験の豊富な宅建士に相談するのがベスト❕
契約実績年間100件以上のエステート・ワン売買スタッフが
皆さまの「住まい探し」をサポートします!
なお、新型コロナウイルスの感染症対策として、相談会は完全予約制とさせていただいておりますので、
ご希望の時間をあらかじめご予約お願いいたします。
当日のご予約も可能ですので、お気軽にお問合せください♪
TEL:0284-44-1691
<開催日時> 10月18日(土)10:00~17:00
<会場> エステート・ワン
完全予約制です。
■当日のご予約も可能です
足利市の住まい探しは株式会社エステート・ワンにおまかせください
=-=-=-=-=-=-=-=-=-=-=-=-=-=-=-=-=–=-=-=–=-=-=-=-=-=-
株式会社エステート・ワン
〒326-0053 栃木県足利市伊勢町3丁目4−14
TEL: 0284-44-1691
FAX: 0284-44-1692
Mail: contact@estateone.co.jp
営業時間:10:00~18:00
定休日:水曜日
=-=-=-=-=-=-=-=-=-=-=-=-=-=-=-=-=–=-=-=–=-=-=-=-=-=-

エステート・ワン

